
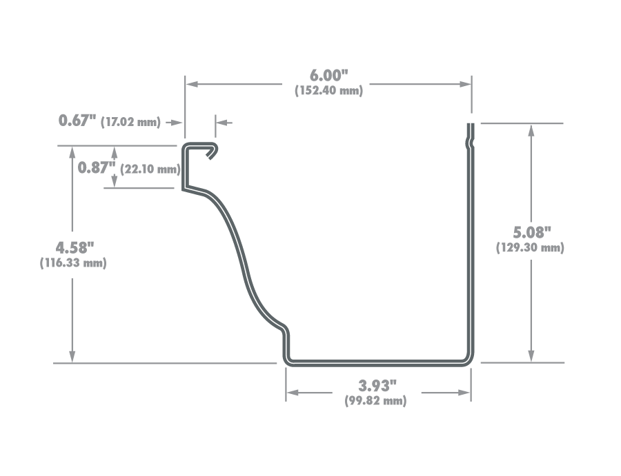
K-Style or ogee gutters have an elongated ‘S’ incorporated into the front-face that closely resembles crown moulding.
The most widely-used gutters in the U.S. today are 5”, 6” and 7” K-Style gutters. For the last 50 years, mobile seamless gutter machines have made installing these gutters simple by allowing the installers to fabricate seamless gutters on-site.
We offer K-Style gutters in aluminum, steel, and copper in all sizes.
Click here to see the colors we offer for gutters and downspouts.